1 Potštejn

Individuální návrhy a realizace
Architekti
Užitná plocha
189 m2
Realizace
2024
Projektanti
Fotograf
Lina Németh

Malebné městečko v podhůří Orlických hor, kterým se klikatí řeka Divoká Orlice, je ideální pro rodinnou víkendovou relaxaci.

/
Investoři jako své nové víkendové útočiště zvolili dřevostavbu, která esteticky i filozoficky zapadá do místního koloritu. 

V představách o budoucím domě jsme byli s investory na podobné vlně a doplňovali se. Jsem rád, že jsem dostal důvěru řešit také interiér, který tak navazuje na jednoduchou architekturu domu a přilehlou zahradu. Velké množství použitých přírodních materiálů vyzařuje pozitivní energii, která nepochybně umí dobíjet.

/ architekt Michal Kotlas

Kde končí cesta a začíná domov

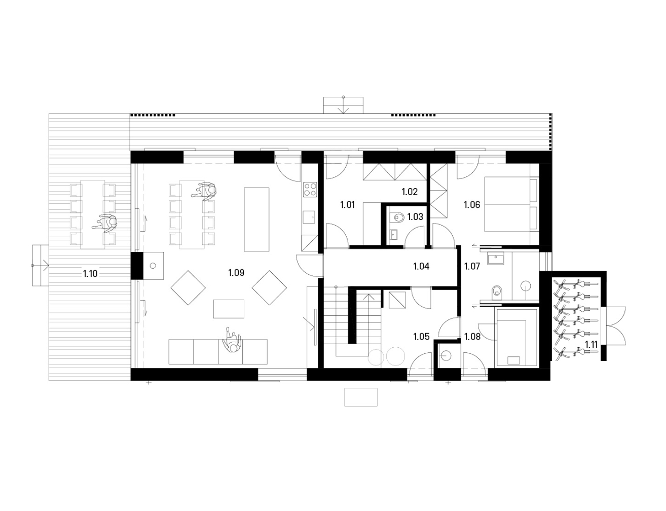
Rodinný dům jsme postavili na rovinatém pozemku nedaleko centrální části obce, na úpatí kopce, kde vykukuje místní dominanta – zřícenina středověkého hradu. Cestu, která vede k domu a dále už nepokračuje, lemují malebné chaloupky a chalupy. Na protilehlém pozemku přes cestu je volná nezastavěná louka, která ústí na výletní stezku kolem Divoké Orlice - skvělé místo k vycházkám kouzelnou přírodou orlickohorského podhůří. Dřevostavbu jsme umístili do podobné stopy, kde stál kdysi dům původní. Je to tradiční obdélník, s jedním podlažím a s podkrovím, které je kryto sedlovou střechou. Hřeben je srovnán podélně s delší stranou pozemku a cestou. Vstupní straně domu dominuje po celé jeho délce zápraží kryté přesahem střechy, které je propojeno s hlavní terasou před obytným prostorem. Směrem do stráně a s výhledem na hrad jsme do střechy umístili jednoduchý vikýř, který uvnitř zvětšuje prostor pro pracovnu a schodiště. Nad domem, ve stráni, se nachází původní sklep, který majitelé domu obnovili a opatřili střechou a okny ve stejném stylu, jako má novostavba. 

/
Výtvarně je dům pojatý jako jednoduchá obdélníková hmota s dřevěným obkladem bez povrchové úpravy, s okny a dveřmi v pastelově modré, které rozveselují a vhodně doplňují neutrální přírodní odstíny fasády i interiéru. 
/
Soukromí dolních místností je možné zvýšit pomocí pojízdných okenic, které v případě potřeby zakryjí prosklené plochy a zároveň představují estetický prvek na jinak jednotné fasádě

Vizuální jednota

Dům má betonové monolitické plošné základy, stěny jsou z masivních CLT panelů a zatepleny jsou minerální vatou a dřevovláknitou izolací. Stropní konstrukce je dřevěná trámová se záklopem a hrubou betonovou podlahou. Fasáda je z modřínových palubek bez povrchové úpravy, kontrastně ji doplňuje vikýř a oplechování lakovaným plechem v antracitové barvě. Střecha je pokryta betonovými taškami v černém odstínu. Vnější vizuální jednota domu není rušena okapy, ani jinými prvky na svod vody. Dešťová voda ze střechy je vedena do zaatikových žlabů, odkud ústí svodem do země. Tyto svody jsou maskované svislým laťováním, které navíc kryje zápraží v pohledu od příjezdové cesty.

Interiér, co voní dřevem

V interiéru je hodně přiznaného pohledového dřeva. Ať už jde o CLT panely nebo obklady biodeskou. Hlavnímu obytnému prostoru dominují velké prosklené plochy se vstupem na terasu a také krbová kamna. Na stropě jsou výrazné pohledové dřevěné trámy, doplněné o akustické podhledy v meziprostoru, které dokreslují charakter moderní chalupy. Nábytek byl zvolen s ohledem na charakter a provoz domu – tedy především na jeho společenskou funkci. Tím, že je autorem návrhu domu i jeho interiéru jeden architekt, ladilo se vybavení, jeho účel a pojetí již od počátku spolupráce. Veškeré úložné prostory v domě – včetně knihovny či poliček v hlavní obývací místnosti - tak jsou na míru dělané od truhláře ze stejného materiálu jako je konstrukce domu.

Od začátku jsme inklinovali k dřevostavbě, která by přirozeně zapadla do místní zástavby. Dřevo vnímáme jako materiál, který sem patří esteticky i pocitově. V těsném sousedství navíc stojí památkově chráněná roubenka, a proto jsme se záměrně nevydali cestou napodobování, ale zvolili jsme současné pojetí dřevostavby pro 21. století.

Klienti
/
Vikýř v horním patře je vybaven sedacím parapetem, kde si lze číst, nebo se jen kochat pohledem ven.
/
Ložnice v horním patře jsou prostorově otevřené až do krovu, což dodává prostoru vzdušnost, kterou naopak přiznané pohledové trámy tlumí a místnost zútulňují. 
Koupelny jsou v čistém, bílo-šedém provedení. V horním patře bylo třeba jejich dispozici přizpůsobit zkosení.
1
Další projekt

Satalická pila

Posuň